
BASE MODEL INCLUDES
- New Container
- Premium Waterproof Plank Flooring
- Drywall Walls & Ceiling for Smooth Modern Look
- Insulated with Expert Technology
- High Efficiency AC Unit With Heat Pump
- Floor to ceiling insulated glass
- LED Lighting Package
- 8 Gal Water Heater
- Vinyl Plank Shower Walls With Glass Shower Door
- Full Bathroom With Rain Shower
- Premium Storage Cabinetry
- Kitchen Bar Sink
- Induction Cooktop
PREMIUM MODEL UPGRADE
- Body Jets
- LED Vent Hood
- Shiplap Ceiling Upgrade
- Custom Built-In Bed with Storage
- Anti-Fog Illuminating Bathroom Mirror
- 20ft trailer
PREMIUM OFF GRID UPGRADES
- Composting Toilet – $2,500
- Solar Package – $12,500
The Interior




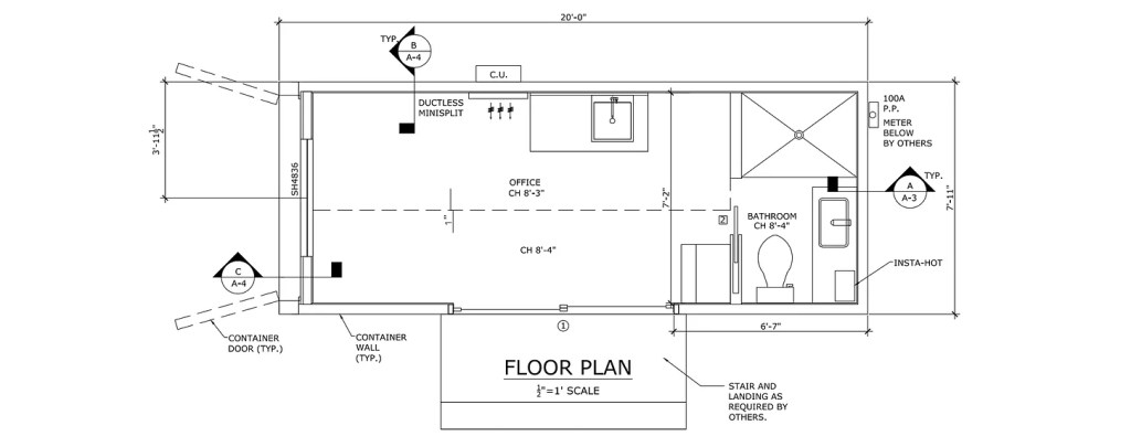
The Floor Plan
